68 Blunden Road
Te Whāriki, Lincoln
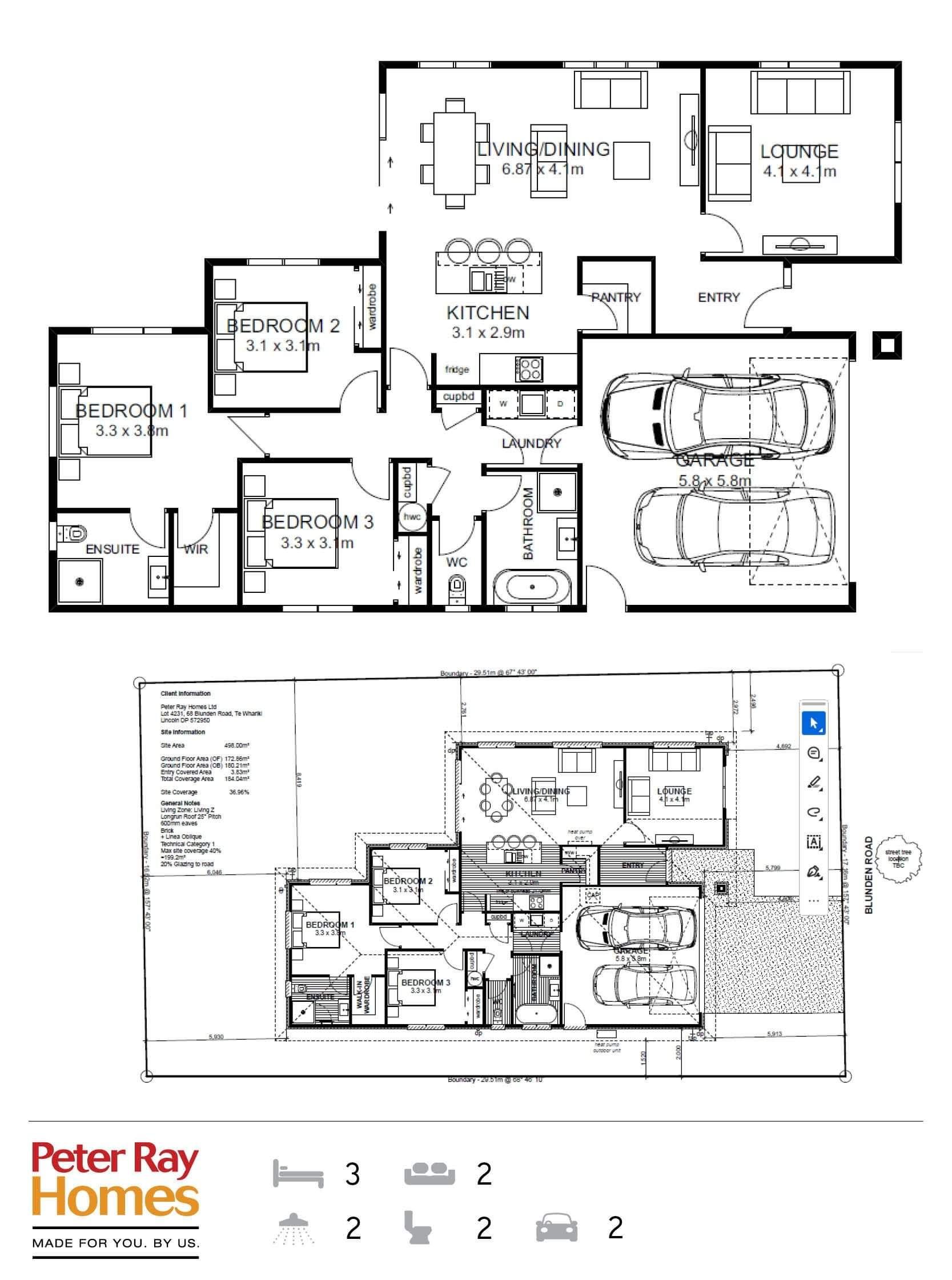
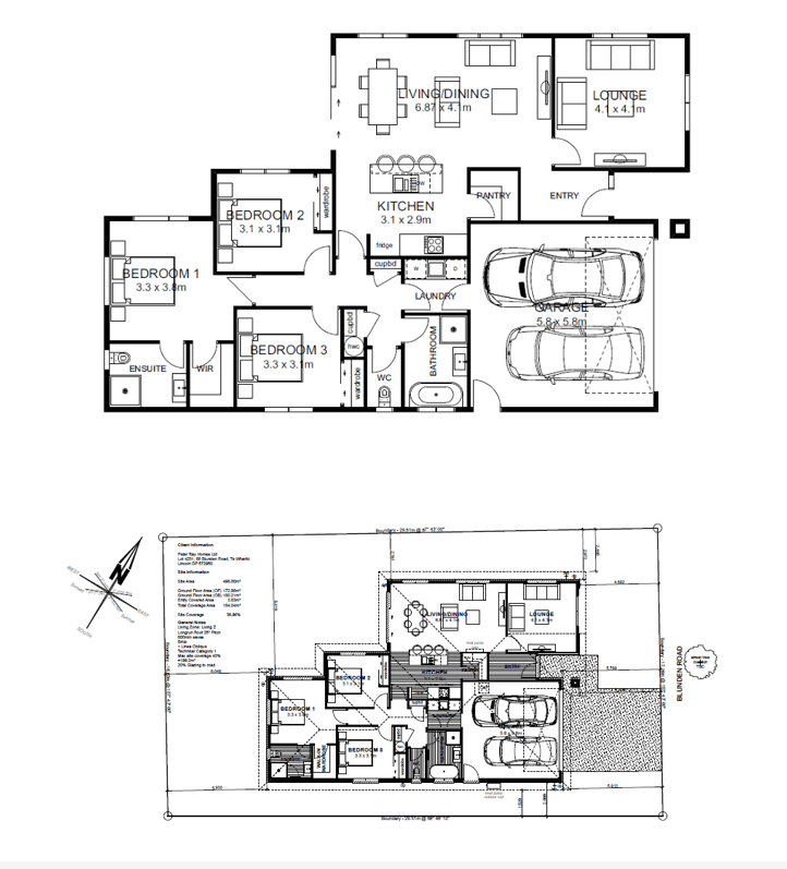
Discover this exceptional turnkey home and land package located on Blunden Road in the heart of Te Whāriki, Lincoln. Thoughtfully designed for comfort and functionality, this 180sqm home features three generously sized bedrooms, including a master suite with a private ensuite, two separate living areas, and a dedicated dining space - perfect for both relaxed family living and entertaining. The double garage provides secure parking and additional storage, while the home’s layout offers a seamless flow and a warm, welcoming feel throughout. Built to the highest standards, your new home comes with a 10-year Master Build Guarantee and is finished with a selection of quality appliances to make everyday living a breeze. A landscaping allowance is also included, giving you the opportunity to put your personal stamp on your outdoor space and complete your new home environment. Te Whāriki is a thriving, well-connected community surrounded by natural beauty, from picturesque wetlands to scenic reserves.
62 Blunden Road (Lot 4231)
Te Whāriki, Lincoln
$860,000
Turnkey from 10% Deposit
Home Size 180.21sqm
Section Size: 498sqm
BEDROOMS
Bed 1 | 3.3 x 3.8m
Bed 2 | 3.1 x 3.18m
Bed 3 | 3.3 x 3.1m
LIVING AREAS
Living/Dining | 6.87 x 4.1m
Lounge | 4.1 x 4.1m
GARAGE
Double Garage | 5.8 x 5.8m
Inclusions
• Home Collection specification
• Appliances
• Floor Coverings
• Heatpump
• Tiled shower to ensuite
• Stone bench tops
• 10 year Master Build Guarantee
• Landscaping Allowance for Driveway, Patios, Fencing and Planting
For More Information
Contact us for more information about this home or to arrange a time to meet with one of our Consultants.
Peter Ray Homes | Christchurch
521 Blenheim Road, Sockburn, Christchurch
Monday - Friday, 8.30am - 4.30pm
(03) 348 1994
info@peterrayhomes.co.nz
















