Lot 91, Broadfield Grange Rolleston
Lot 91
Broadfield Grange, Rolleston
$795,000
Turnkey from 10% Deposit
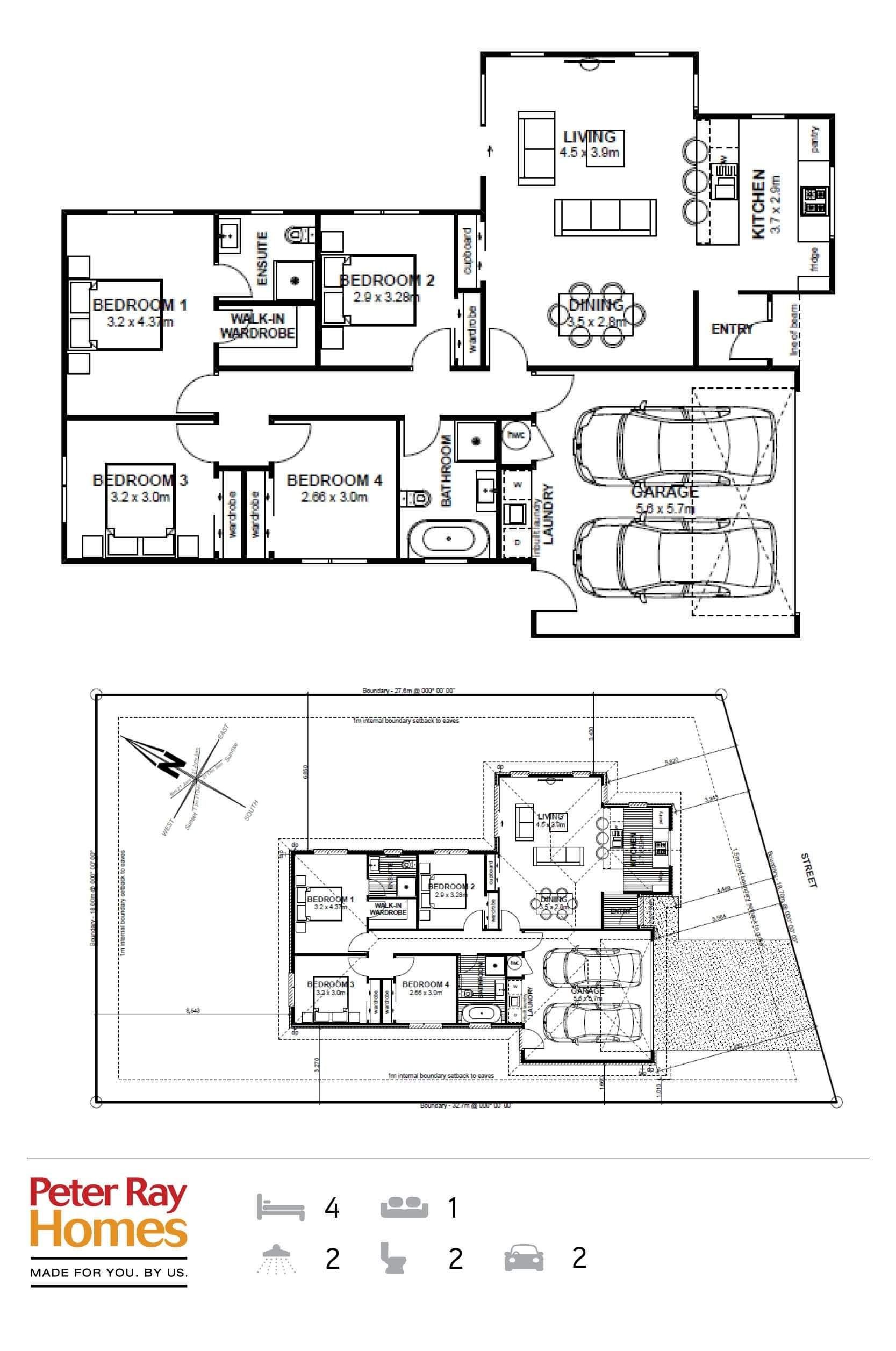
Home Size 160.23sqm
Section Size: 541sqm
BEDROOMS
Bed 1 | 3.2 x 4.37m
Bed 2 | 32.9 x 3.28m
Bed 3 | 3.2 x 3.0m
Bed 4 | 2.66 x 3.0m
LIVING AREAS
Living | 4.5 x 3.9m
Dining | 3.5 x 2.8m
GARAGE
Double Garage | 5.6 x 5.7m
Inclusions
• Home Collection specification
• Appliances
• Floor Coverings
• Heatpump
• 10 year Master Build Guarantee
• Landscaping Allowance for Driveway, Patios, Fencing and Planting
For More Information
Contact us for more information about this home or to arrange a time to meet with one of our Consultants.
Peter Ray Homes | Christchurch
521 Blenheim Road, Sockburn, Christchurch
Monday - Friday, 8.30am - 4.30pm
(03) 348 1994
info@peterrayhomes.co.nz
















