Hepburn
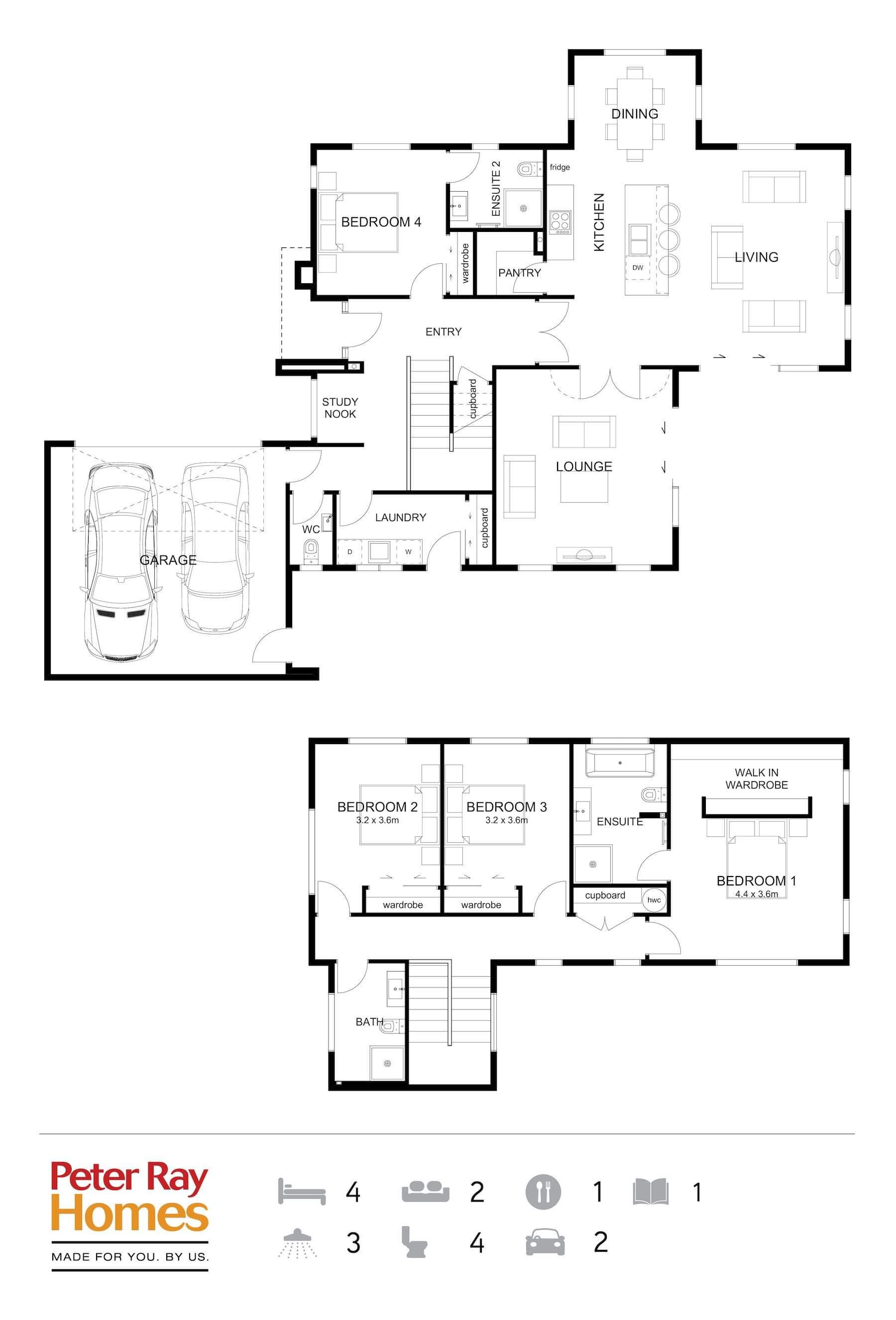
Introducing the 'Hepburn' concept plan - a remarkable two-storey residence spanning 261sqm. Downstairs the kitchen, living and dining areas seamlessly flow into a large open space with sliding doors opening to the outdoor area. A convenient study nook offers a dedicated space for productivity. You'll also find a thoughtfully positioned bedroom with its own ensuite, offering comfort and privacy for guests or family members. Ascending the stairs, you'll discover two well-appointed bedrooms as well as the main bedroom which features a spacious walk-in wardrobe and ensuite with a bath beneath a window.
Hepburn
Floor Area 261.31sqm
Ground Floor | 170.56sqm
First Floor | 90.75sqm
External Dimensions:
Length | 20.42m
Width | 15.95m
BEDROOMS
Bed 1 | 4.4 x 3.6m
Bed 2 | 3.2 x 3.6m
Bed 3 | 3.2 x 3.6m
Bed 4 | 3.3 x 3.7m
LIVING AREAS
Living | 4.5 x 5.5m
Dining | 3.1 x 3.3m
Lounge | 4.5 x 5.0m
GARAGE
Double Garage | 6.0 x 5.8m
Make This Plan Your Own
Personalise the plan with your own cladding, roofing and colours. We have a range of exterior options to suit.
Customise Your Plan
All of our plans can be adapted to suit your individual needs or we can create your own unique design.
For More Information
Contact us for more information about this home or to arrange a time to meet with one of our Consultants.
Peter Ray Homes | Christchurch
521 Blenheim Road, Sockburn, Christchurch
Monday - Friday, 8.30am - 4.30pm
(03) 348 1994
info@peterrayhomes.co.nz


















