19 Nethercote Lane
Faringdon, Rolleston
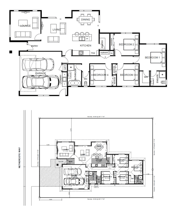
19 Nethercote Lane (Lot 273)
Faringdon, Rolleston
$873,000
Turnkey from 10% Deposit
Home Size 193sqm
Section Size: 551sqm
BEDROOMS
Bed 1 | 3.3 x 3.6m
Bed 2 | 3.0 x 3.0m
Bed 3 | 3.0 x 3.0m Bed 4 | 3.0 x 3.0m
LIVING AREAS
Lounge | 4.1 x 4.0m Living | 4.3 x 4.1m
Dining | 3.6 x 3.1m
GARAGE
Double Garage | 5.7 x 5.9m
Inclusions
• Home Collection specification
• Appliances
• Floor Coverings
• Heatpump
• Tiled shower to ensuite
• 10 year Master Build Guarantee
• Landscaping Allowance for Driveway, Patios, Fencing and Planting
For More Information
Contact us for more information about this home or to arrange a time to meet with one of our Consultants.
Peter Ray Homes | Christchurch
521 Blenheim Road, Sockburn, Christchurch
Monday - Friday, 8.30am - 4.30pm
(03) 348 1994
info@peterrayhomes.co.nz
















