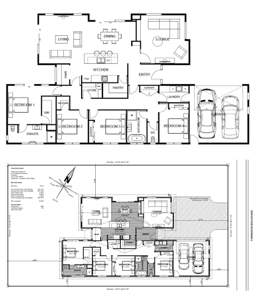
172 Faringdon Boulevard, Rolleston
172 Faringdon Boulevard (Lot 12) Faringdon, Rolleston
$1,065,400
Turnkey from 10% Deposit
Home Size 247sqm
Section Size: 740sqm
BEDROOMS
Bed 1 | 3.4 x 3.9m
Bed 2 | 3.2m x 3.3m
Bed 3 | 3.2 x 3.3m Bed 4 | 3.0 x 3.4m
LIVING AREAS
Living | 4.93 x 4.92m Lounge | 4.45 x 4.92m
Dining | 4.42 x 3.21m Kitchen | 4.74 x 3.0m
GARAGE
Double Garage | 5.9 x 5.8m
Inclusions
• Home Collection specification
• Appliances • Stone bench top
• Floor Coverings
• Ducted heatpump
• 10 year Master Build Guarantee
• Landscaping Allowance for Driveway, Patios, Fencing and Planting
For More Information
Contact us for more information about this home or to arrange a time to meet with one of our Consultants.
Peter Ray Homes | Christchurch
521 Blenheim Road, Sockburn, Christchurch
Monday - Friday, 8.30am - 4.30pm
(03) 348 1994
info@peterrayhomes.co.nz
















